Brannon Oaks

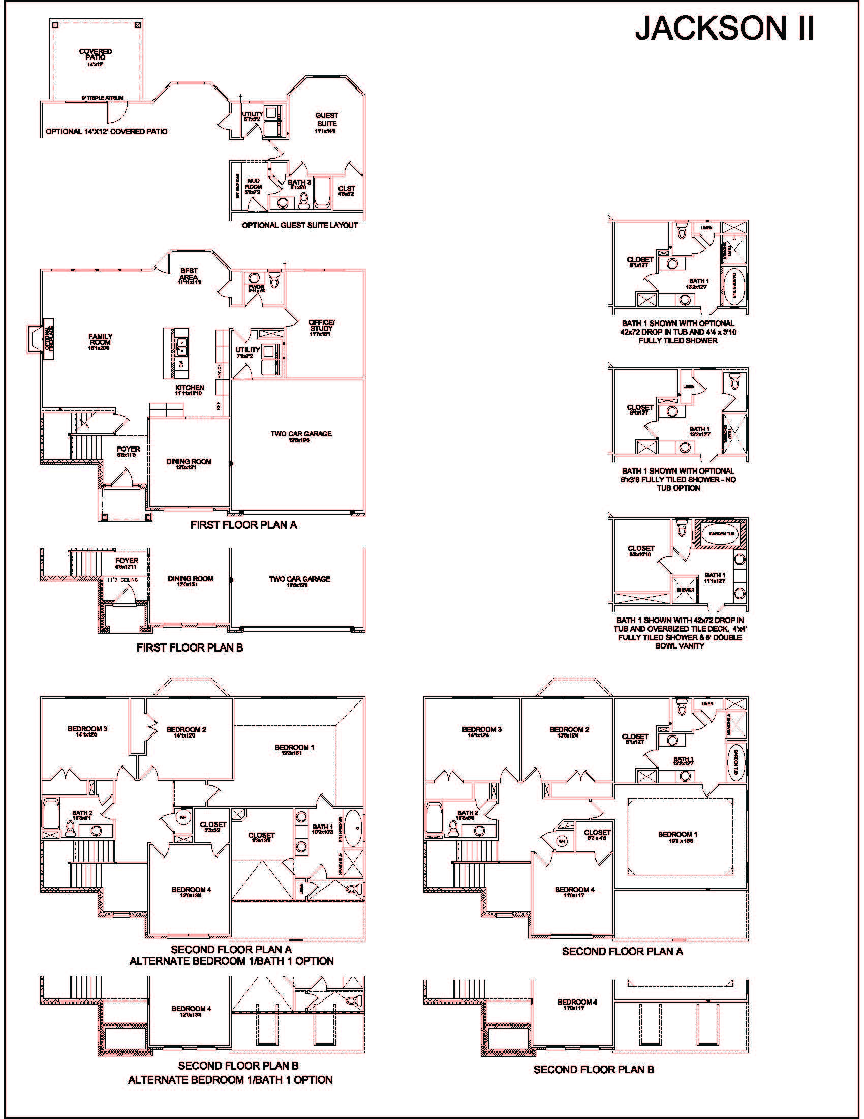
Jackson II
Brannon Oaks

  • 2683 Square Feet
  • 4 Bedrooms
  • 2.5 Baths
  • 2 Car Garage
The Jackson II is a spacious four bedroom  home with a downstairs office/study, which can also be configured as a guest suite with bay window.  The two story foyer has a railed overlook above, and encompasses a stairway with a feature window over the landing.  The family room and breakfast overlook the rear yard, and the centrally located kitchen is open to all main living areas of the home, for good traffic flow and entertaining.  A large pass-through utility room/mudroom is on the first floor, and accesses a back hallway convenient to the powder room and kitchen.  The office or study is located off this hallway, creating a nice combination of privacy and accessibility.  When the optional guest suite replaces the office/study, a drop zone is also available leading from the garage to house.  Nine foot ceilings throughout the first floor are included. 

The upstairs primary bedroom suite features a large bedroom with a trey ceiling, and a luxury bath with his-and-hers vanities, linen closet, enclosed commode, garden tub, and separate shower, adjacent to a roomy closet.  An alternate second floor layout with the primary bedroom overlooking the back yard is also offered.  Three additional bedrooms, one with a large walk-in closet, share a hall bath.  Exterior plan details include a front porch, board and batten siding accents, and true radius head windows.
 

Malcolm Meers

Christie's International Real Estate Bluegrass

859-621-1236

Contact Another Agent

Pre-qualify
Mortgage Calculator