Belhurst

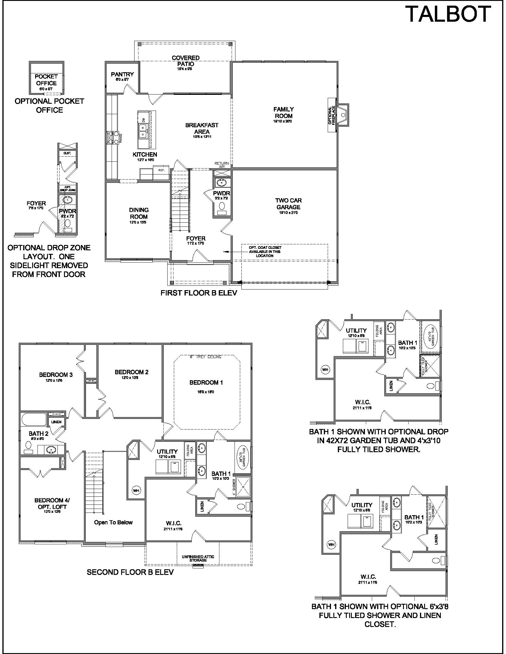
Talbot
Belhurst

  • From: $472,950
  • 2742 Square Feet
  • 4 Bedrooms
  • 2.5 Baths
  • 2 Car Garage
The Talbot floor plan is a traditional two story floor plan with a family-friendly design.  A large family room is open to the kitchen and breakfast area, and the formal dining room is located at the front of the home. The spacious kitchen, which features a full wall of cabinets and countertop space, offers an island, and a large pantry or pocket office option. The kitchen and breakfast area adjoin the covered patio and expansive windows overlook the rear yard.

All bedrooms are upstairs, and the primary bedroom suite includes a garden tub and separate shower, a linen closet and commode closet, and dual vanity.  Three large bedrooms and a shared bathroom complete the upstairs.  A loft option is available in lieu of bedroom four.  An unfinished storage area above the garage is accessed through the closet. A drop zone layout or coat closet are available in the foyer. 
 

Ashley Peercy

Christie's International Real Estate Bluegrass

(859) 661-0272

Contact Another Agent

Pre-qualify
Mortgage Calculator