Floor Plans / Balsam Springs

Balsam Springs

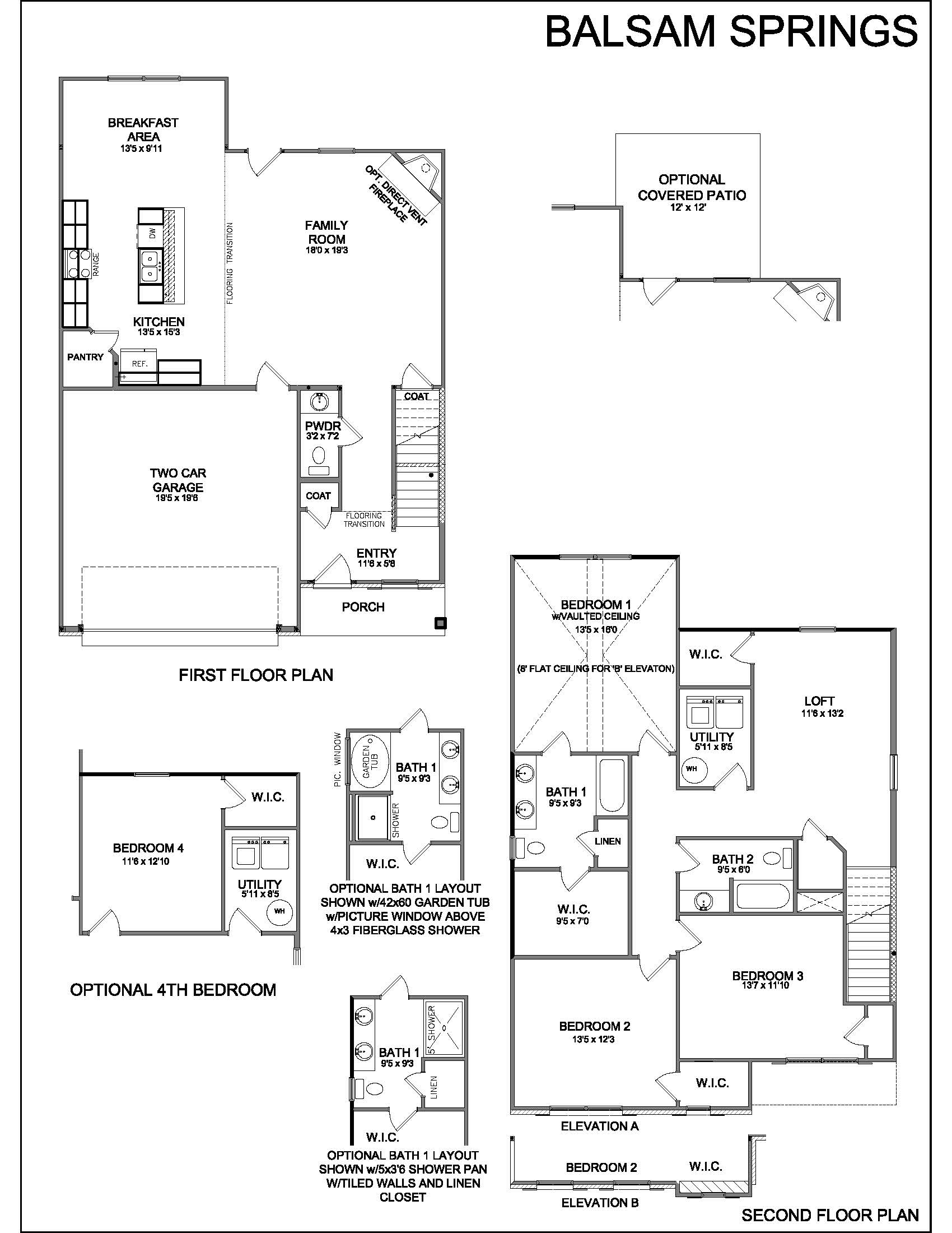
  • 2231 Square Feet
  • 3 Bedrooms
  • 2.5 Baths
  • 2 Car Garage

New Plan

The Balsam Springs, part of the Trend Collection by Ball Homes, is a two-story plan with an open first floor layout and lots of second floor living space.  The kitchen and family room are open to each other, with an optional direct vent fireplace and covered patio possible.  The kitchen features a corner pantry, island with counter dining, and a spacious dining area with windows.Three bedrooms and a loft or optional fourth bedroom, two full baths, utility room,  and linen closet are all upstairs.  Bedroom 1 has a vaulted ceiling (Elevation A only), primary bath with dual vanity, tub/shower combination, and linen closet, opening to a large closet.   An upgrade primary bath offers a garden tub, separate shower, and picture window.  Exterior details include a covered front porch.

Availability and Pricing

The Balsam Springs floor plan is available in the following communities:

CommunityCity/CountyBase Price
Trend Collection at Bourbon Oaks Paris $316,950
Trend Collection at Emory Green Knoxville $408,950
Trend Collection at Hickory Meadows Knoxville $413,950
Trend Collection at Hickory View Knoxville $433,950
Trend Collection at Masterson Lexington $366,650
Trend Collection at Oxford Landing Georgetown $337,650
Trend Collection at South Crossing Georgetown $345,650
Trend Collection at The Arbours Nicholasville $332,650