Floor Plans / The Lowery

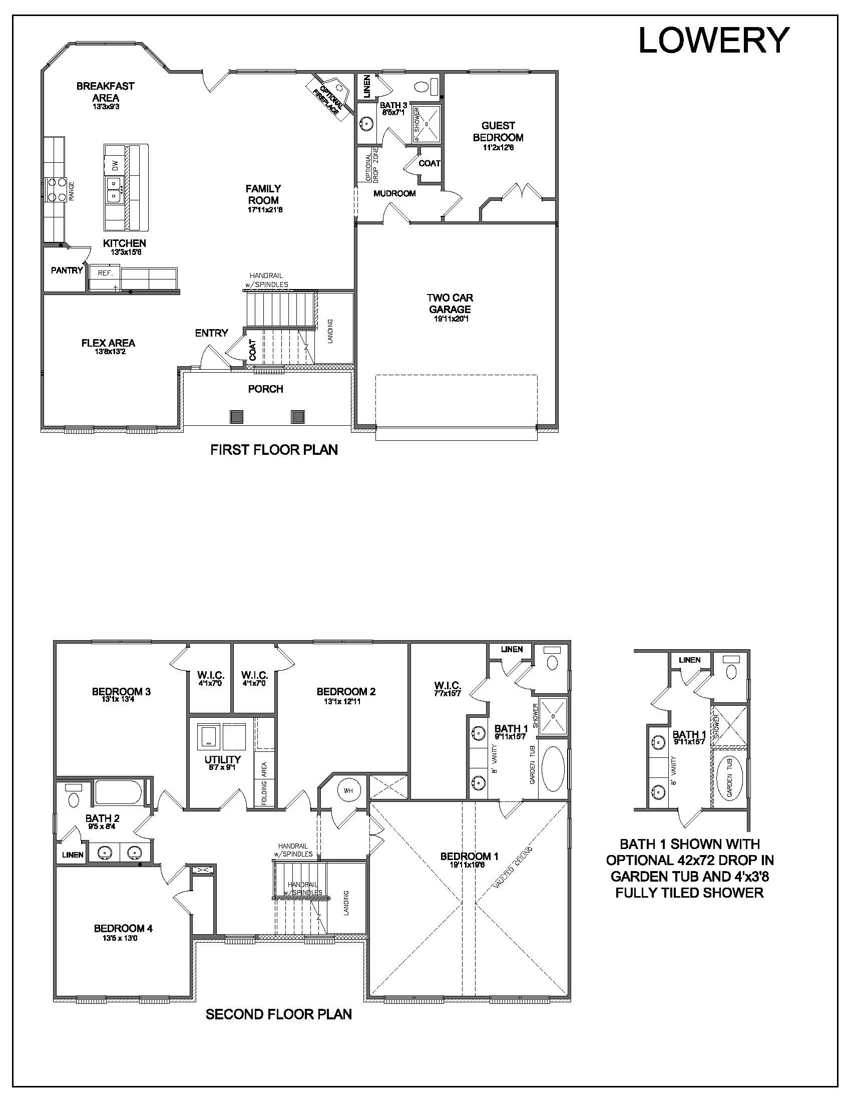
Lowery

  • 3110 Square Feet
  • 5 Bedrooms
  • 3 Baths
  • 2 Car Garage

New Plan

The Lowery is a traditional two-story plan with a flex area off the entry and a large family room with optional fireplace opening to the island kitchen and sunny breakfast area. A first floor guest suite is tucked away at the rear of the home and a mudroom with optional drop zone conveniently connects the garage to the family room. Upstairs, there are four large bedrooms and a centrally located utility room with folding area. The upstairs primary suite features vaulted ceilings, a luxurious bath with double bowl vanity, walk-in shower, separate tub, and spacious walk-in closet. Additional features include a covered front porch and hip roof design.  

Availability and Pricing

The Lowery floor plan is available in the following communities:

CommunityCity/CountyBase Price
Bellingham Park Louisville $506,950
Brannon Oaks Nicholasville
Rose Ridge Versailles $477,950
Sanders Garden Lexington $454,950
The Abbey at Old Oxford Georgetown $401,950
The Landing at Grey Oak Nicholasville $459,950
The Peninsula Lexington $518,950
The Reserve at Hickory Creek Knoxville $586,950
The Reserve at Paynes Crossing Versailles