Floor Plans / Newbury Cross

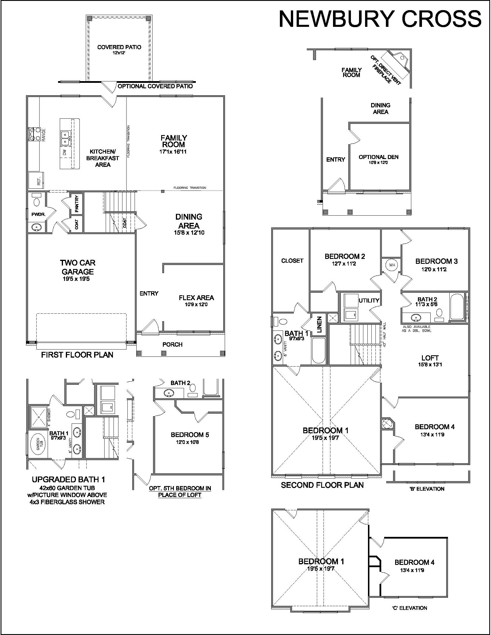
Newbury Cross

  • 2775 Square Feet
  • 4 Bedrooms
  • 2.5 Baths
  • 2 Car Garage

The Newbury Cross, part of the Trend Collection by Ball Homes, is a two-story plan that can be configured with up to five bedrooms.  The plan offers a versatile flex area than can be configured as a den off the entry, plus a formal dining room defined by a column.  The open kitchen and family room are located at the rear of the home.  The island kitchen offers both a breakfast area and countertop dining.  The entrance from the garage leads to the kitchen via a hallway adjoining the powder room, pantry, and coat closet for a semi-private and convenient entry. Upstairs are the primary bedroom suite, three bedrooms, a loft and a hall bath. The loft can also be configured as a fifth bedroom option. The primary bedroom suite includes a bedroom with vaulted ceiling, large closet, and spacious bath with tub/shower, window, and linen storage.  An upgraded bath offers a garden tub, separate shower, and picture window.

Availability and Pricing

The Newbury Cross floor plan is available in the following communities:

CommunityCity/CountyBase Price
Trend Collection at Bourbon Oaks Paris $338,950
Trend Collection at Clover Meadow Maryville $428,150
Trend Collection at Emory Green Knoxville $438,150
Trend Collection at Hickory Meadows Knoxville $443,150
Trend Collection at Hickory View Knoxville $463,150
Trend Collection at Masterson Lexington $388,150
Trend Collection at Oxford Landing Georgetown $360,150
Trend Collection at Parkside Louisville $348,150
Trend Collection at Paynes Crossing Versailles $375,150
Trend Collection at South Crossing Georgetown $368,150
Trend Collection at The Arbours Nicholasville $354,150