Floor Plans / Bedford Hill

Bedford Hill

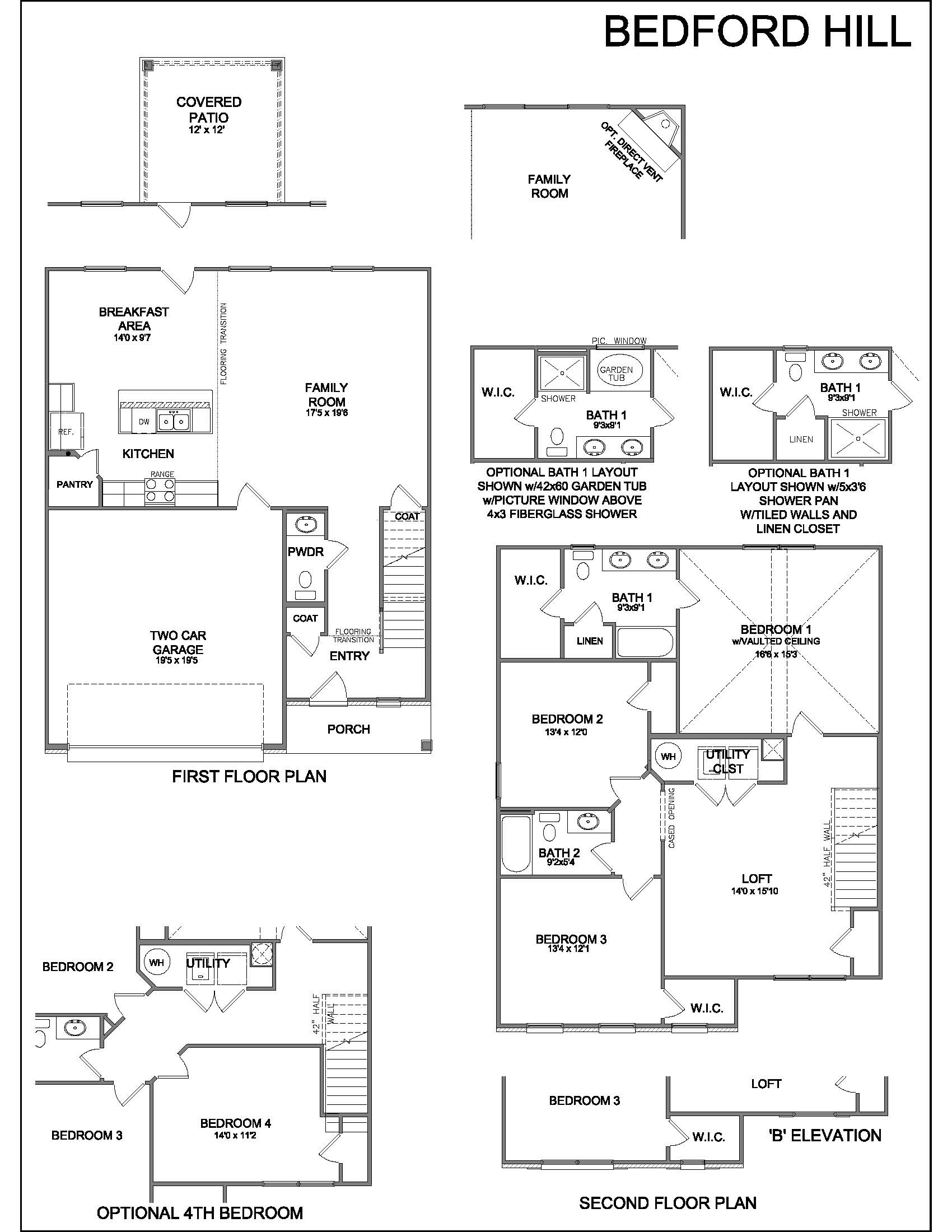
  • 2071 Square Feet
  • 3 Bedrooms
  • 2.5 Baths
  • 2 Car Garage

The Bedford Hill, part of the Trend Collection by Ball Homes, is two story plan with a very open first floor layout.  The island kitchen offers both a breakfast area and countertop dining, and a large pantry.  The kitchen opens to the family room at the rear of the home.  Upstairs are the primary bedroom suite, two bedrooms and a hall bath, plus a spacious loft that can also be configured as a fourth bedroom option. The primary bedroom suite includes a bedroom with vaulted ceiling, large closet, and spacious bath with tub/shower, and linen storage.  An upgrade primary bath offers a garden tub, separate shower, and picture window.

Availability and Pricing

The Bedford Hill floor plan is available in the following communities:

CommunityCity/CountyBase Price
Trend Collection at Bourbon Oaks Paris $297,950
Trend Collection at Fairview Woods Nicholasville $357,050
Trend Collection at Masterson Lexington $347,050
Trend Collection at Old Oxford Georgetown
Trend Collection at Paynes Crossing Versailles $334,050
Trend Collection at South Crossing Georgetown $332,050
Trend Collection at The Arbours Nicholasville $317,050