Floor Plans / Stone River

Stone River

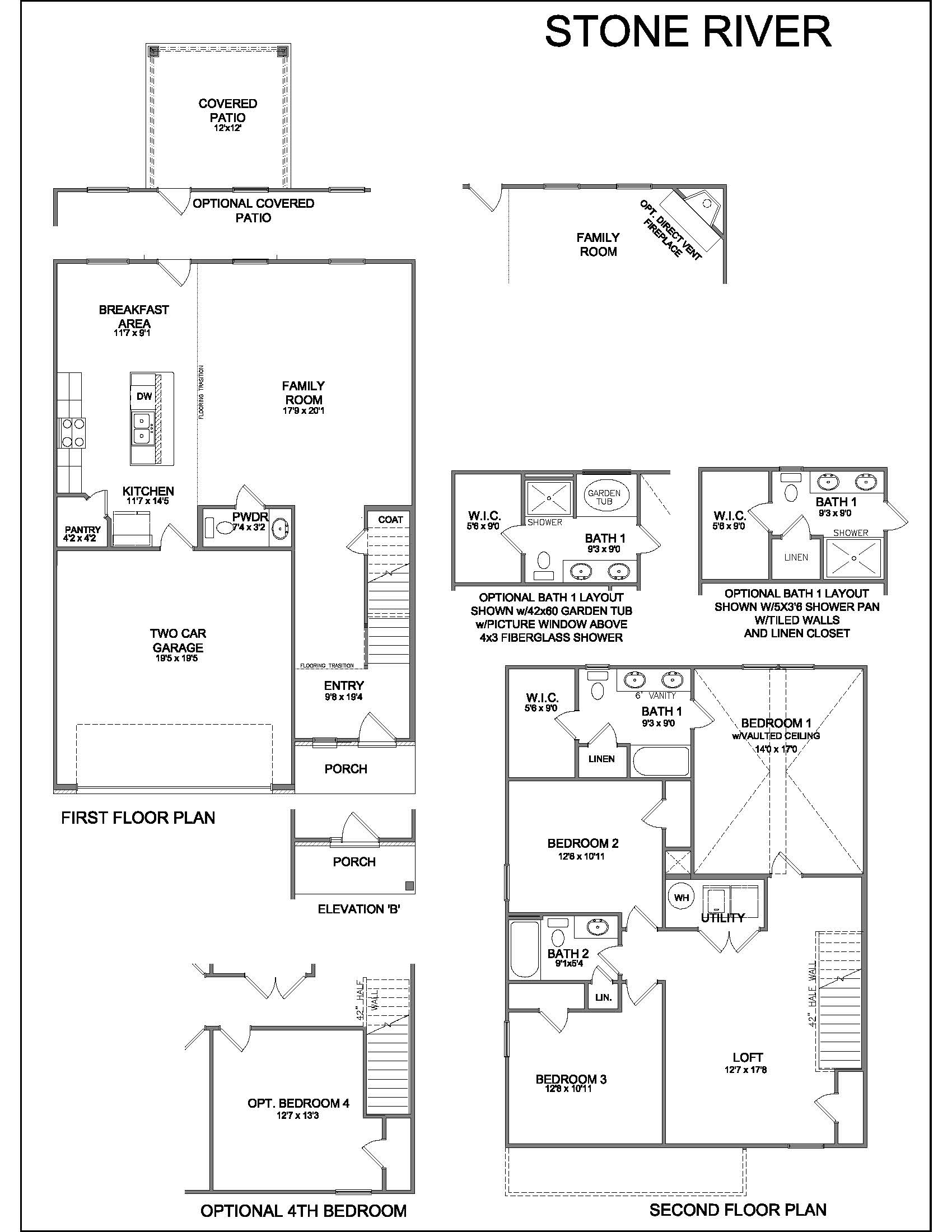
  • 2046 Square Feet
  • 3 Bedrooms
  • 2.5 Baths
  • 2 Car Garage

The Stone River, part of the Trend Collection by Ball Homes, is two story plan with an open first floor layout.  The island kitchen offers both a breakfast area and countertop dining, and a large pantry.  The kitchen opens to the family room at the rear of the home.  Upstairs are the primary bedroom suite, two bedrooms and a hall bath, plus a spacious loft that can also be configured as a fourth bedroom option. The primary bedroom suite includes a bedroom with vaulted ceiling, large closet, and spacious bath with tub/shower, window, and linen storage.  An upgrade bath offers a garden tub, separate shower, and picture window.

Availability and Pricing

The Stone River floor plan is available in the following communities:

CommunityCity/CountyBase Price
Trend Collection at Masterson Lexington $341,950